The Highfield Plan

961 Property ID
3,806 SqFt Size
3 Bedrooms

Description

This Dusendang Custom Home, the Highfield, sits along Lake Michigan and was designed to take full advantage of what nature provided.

At Dave Dusendang Custom Homes we have a wide-range of plans available for a variety of different homes. Our team will work with you to determine your exact needs and help you review your building plans.

Please contact us if you would like to find out more or schedule a time to talk.

Address

  • Country United States

Overview

  • Property ID 961
  • Bedrooms 3
  • Size 3,806 SqFt
  • Bathrooms 3 ½
  • Main 2002 SqFt
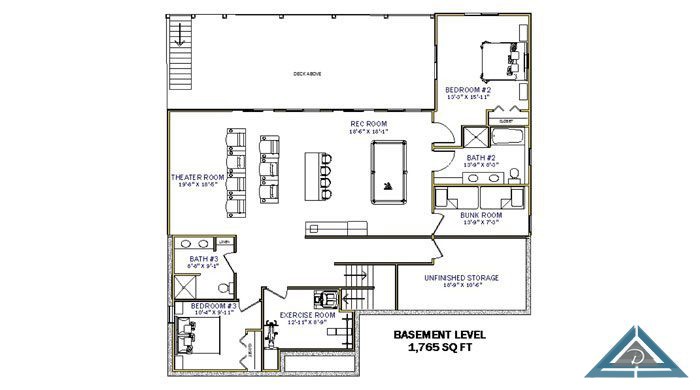
  • Lower Level 1804 SqFt

Video

The Highfield Plan
  • Size 2002 Sq Ft
  • Size 1804 Sq Ft

File Attachments

1.pdf
1.pdf
Download

Leave a Reply

Your email address will not be published. Required fields are marked *