Fairview

1986 Property ID
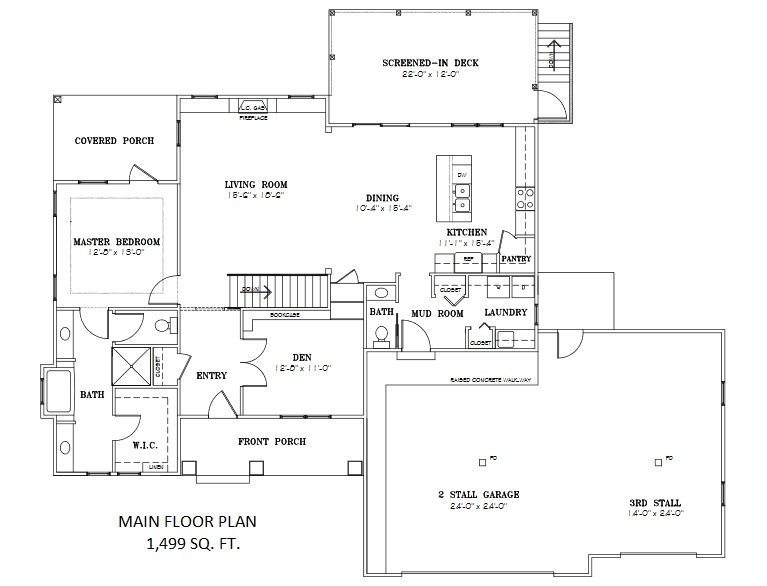
277 SqFt Size
3 Bedrooms

Description

At Dave Dusendang Custom Homes we have a wide-range of plans available for a variety of different homes.
Our team will work with you to determine your exact needs and help you review your building plans.

Please contact us if you would like to find out more or schedule a time to talk.

Address

  • Country United States

Overview

  • Property ID 1986
  • Bedrooms 3
  • Size 277 SqFt
  • Bathrooms 2 1/2
  • Main 1,499 SqFt
  • Basement Floor 1,280 SqFt
  • Size 1499 Sq Ft
  • Size 1280 Sq Ft

File Attachments

16.pdf
16.pdf
Download